AUTO CAD学者学画图一

来源:这里教程网 时间:2026-02-16 09:54:18 作者:

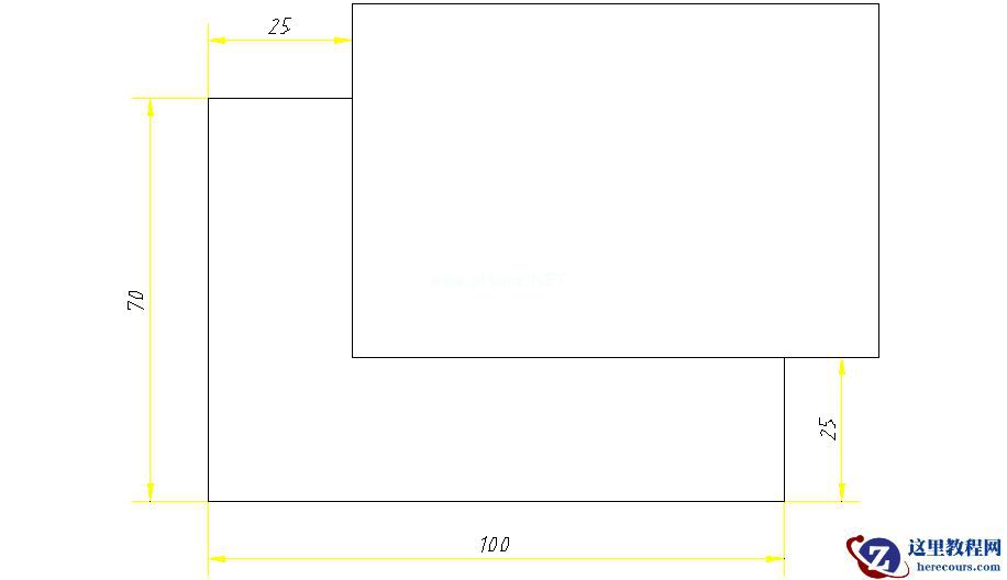
今天学习绘制如下图:

             首先需要先分析一下这个图形对象:图形中只有线段,没有圆弧等其他对象。线段中只有水平和铅垂线段。

             然后在看尺寸:尺寸有100、70和两个25MM。

             最后看图形的形状:形状的分析,因人而不同。但这个阶段需要大家自己练习。

形状分析一:由六个线段组成,这是最先可以想到的 使用PLINE命令配合F8功能完成此图形。

形状分析二:由一个矩形减去一个矩形组成。如图:

形状分析三:由两个矩形组成(有两个组成方式)。如图:

形状分析四:由三个矩形组成。如图:

        以上步骤,是我们拿来图形的分析工作,是必须的阶段。

        有了这些分析过程,才能够有绘制此图形的方法。

相关推荐